Código 3185456-MI
Sala Comercial para venda Chácara das Pedras Porto Alegre RS
Tipo

Sala Comercial

Bairro

Chácara das Pedras

Cidade

Porto Alegre

Valor do condomínio

R$ 570,00

2 vaga(s)

64 m²

R$ 375.000,00

Qual a localização

Descrição do


Imóvel

CÒDIGO 3185456-MI
5 Visita(s)

Sala Comercial para venda Chácara das Pedras Porto Alegre RS

Excelente oportunidade para investidores: sala comercial já locada, com retorno garantido!

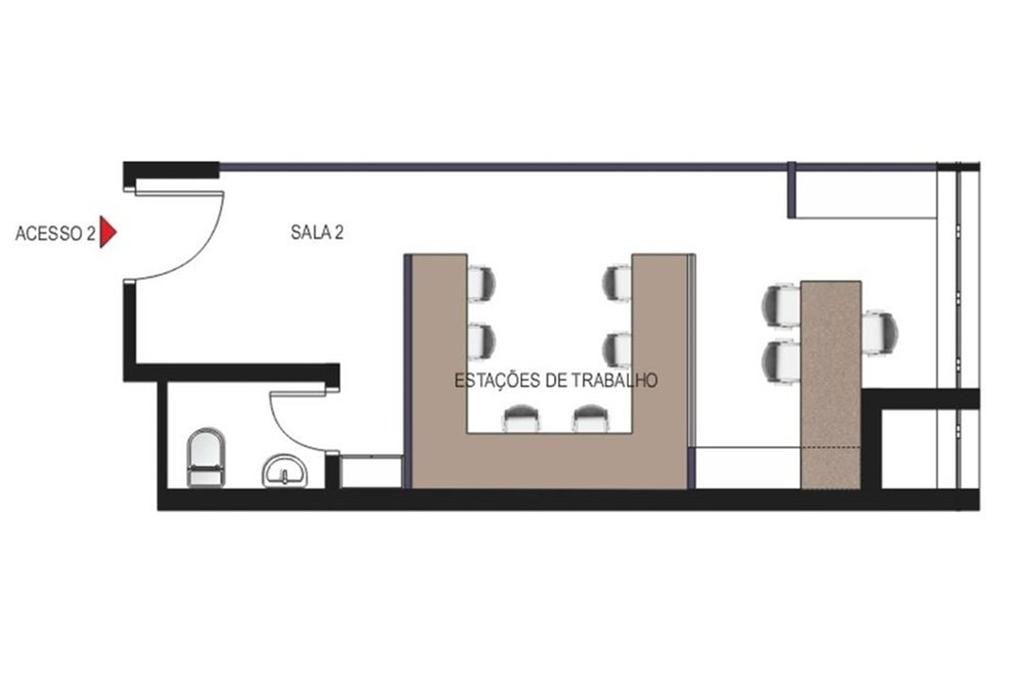
Localizada no 2º andar, esta sala comercial possui 64,31m² privativos, resultado da junção de duas unidades, o que proporciona um layout otimizado e funcional. Conta com duas vagas de garagem cobertas e está atualmente locada, garantindo rendimento desde o primeiro dia.
Se o novo proprietário preferir duas salas independentes, como constam nas matrículas, a alteração é simples e pode ser facilmente realizada. As imagens finais do anúncio ilustram essa possibilidade (plantas baixas e perspectivas).

Os ambientes da sala comercial estão impecáveis, com projeto assinado por arquitetas, marcenaria sob medida, forro, luminárias, acabamentos de qualidade e quatro aparelhos de ar-condicionado tipo split já instalados. A sala é voltada para a frente do edifício, com orientação leste, recebendo sol pela manhã.

O layout atual inclui: recepção, copa, lavabo, estações de trabalho, dois escritórios, sala de reuniões e depósito com acesso direto pela circulação do prédio.

O edifício apresenta arquitetura corporativa, portaria com controle de acesso por cartão, elevador e rampa de acesso.

Ideal para consultórios, clínicas ou escritórios em geral, com grande facilidade de adaptação. As proprietárias, que são arquitetas, colocam-se à disposição para desenvolver um novo layout personalizado, com proposta em 3D, conforme a necessidade do comprador.

Invista em um imóvel pronto, bem localizado e com geração de renda desde já. Agende sua visita! Preço e disponibilidade do imóvel sujeitos a alteração sem aviso prévio.

* Os preços, valores e informações acima exibidos, poderão sofrer mudanças sem prévio aviso. Por este motivo, essas informações deverão ser confirmadas pelo departamento comercial Maciel Imóveis.

Localização do


Imóvel

Imóveis que você vai


Gostar

Sala Comercial

Bairro

Chácara das Pedras

43 m²

R$ 650.000,00

Sala Comercial

Bairro

Chácara das Pedras

33 m²

R$ 129.000,00

Sala Comercial

Bairro

Chácara das Pedras

32 m²

R$ 150.000,00